Gijs Jansen Makelaars - Laren
Vorige | Volgende

Ambachtstraat 2 Laren

Vraagprijs € 850.000 k.k.

Bewaar object
Deze woning is verkocht

Omschrijving

Midden in het gezellige centrum van Laren in een rustig eenrichtingsverkeersstraatje ligt deze sfeervolle HALF VRIJSTAANDE 30-er jaren woning met bijgebouw. De woning is de afgelopen jaren fraai gemoderniseerd.
Het bijgebouw beschikt over bergruimte op de begane grond en de verdieping beschikt over een keukenblokje en kan dienen als werk- of slaapkamer. Alle faciliteiten van het dorp zijn op loopafstand.

De indeling is als volgt:
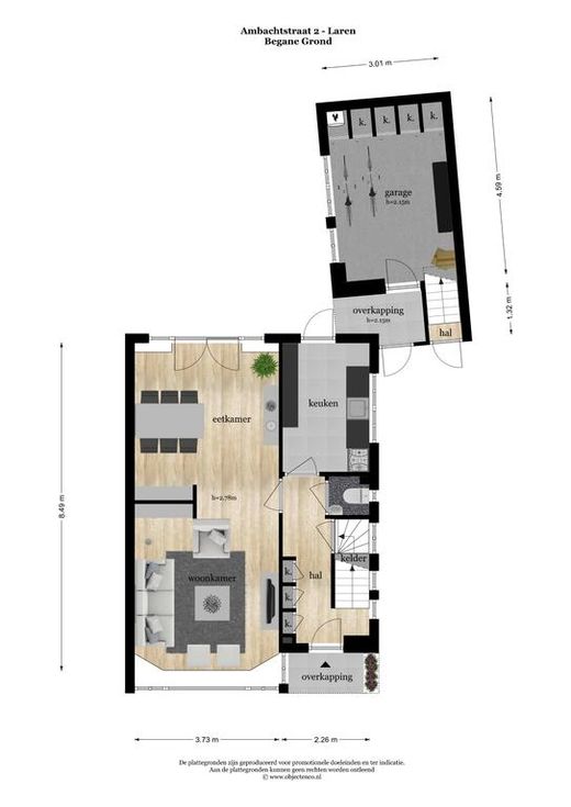
Begane grond: Entree, hal met vaste kasten, trap naar de eerste verdieping, trap naar de kelderkast, toilet met fonteintje, toegang tot de keuken met diverse inbouwapparatuur en deur naar de achtertuin, toegang tot de woonkamer met erker en openslaande deuren naar de besloten achtertuin.

Eerste verdieping: Overloop, trap naar zolderverdieping, slaapkamer 1 met dakkapel en vaste kast, slaapkamer 2 met dakkapel en vaste kastruimte, 3e kleinere slaapkamer, badkamer met inloop douche, toilet, dubbele wastafel en dakkapel.

Zolderverdieping: overloop met aansluiting voor wasmachine en wasdroger, cv opstelling, slaapkamer 4 met dakkapel, vaste wastafel en bergruimte.

Bijgebouw: Entree via de achtertuin of via de voorzijde naar de bergruimte met vaste kasten en eigen cv-opstelling, trap naar de verdieping met een multifunctionele ruimte voorzien van klein keukenblok en dakkapel.

Zonnige patiotuin met toegang tot het bijgebouw.
Het bijgebouw en 2 slaapkamers zijn voorzien van een airco installatie.

Metrages conform NEN2580/Branche Brede Meetinstructie
Woonoppervlakte: 127,1m²
Overige inpandige ruimte: 14,4m²
Gebouw gebonden buitenruimte: 2,7m²
Inhoud 506,76m³
Perceeloppervlakte; 195m²

Kortom, modern comfort in een sfeervolle 30-er jaren helft van dubbel.
Lees de volledige omschrijving

Kenmerken

Overdracht

Aanvaarding
in overleg

Bouw

Soort woning
eengezinswoning
Type woning
twee onder een kapwoning
Soort bouw
bestaande bouw
Bouwjaar
vanaf 1931 t/m 1944
In aanbouw
nee
Bouwperiode
vanaf 1931 t/m 1944

Details

Voorzieningen
airconditioning
Ligging
aan rustige weg, in centrum
Permanente bewoning
ja
Daktype
zadeldak
Dakmateriaal
pannen

Oppervlakten en inhoud

Woonoppervlakte
127 m²
Oppervlakte overige functies
14 m²
Perceel
195 m²
Inhoud
507 m³

Indeling

Aantal kamers
7
Aantal slaapkamers
5
Aantal etages
4
Aantal badkamers
1
Badkamervoorzieningen
dubbele wastafel, inloopdouche, toilet, vloerverwarming, wastafelmeubel
Keuken type
dichte keuken

Isolatie en verwarming

Isolatievormen
dubbel glas, vloerisolatie
Soort verwarming
cv ketel, vloerverwarming gedeeltelijk
Warmwater installatie
cv ketel
Ketel bouwjaar
2010
Ketel type
Atag HR
Ketel gas/olie
gas
Ketel eigendom
eigendom

Energielabel

Energielabel
C
Einddatum energielabel
2031-12-02

Kadastrale gegevens

Kadastrale aanduiding
Laren G 874
Oppervlakte
195 m²
Eigendomssituatie
volle eigendom

Buitenruimte

Tuintype(n)
achtertuin, voortuin
Hoofdtuin type
achtertuin
Hoofdtuin oppervlakte
27 m²
Hoofdtuin achterom
ja
Ligging hoofdtuin
zuid
Totale oppervlakte
120 m²

Garage

Garagesoorten
geen garage

Parkeergelegenheid

Faciliteit
op eigen terrein, openbaar parkeren, parkeervergunningen
Capaciteit parkeren
2

Schuur/berging

Aantal
1
Soort
vrijstaand steen
Bekijk alle kenmerken

Alle foto's

Deel dit object